Startseite zum Kontaktformular Telefon zum Menü
Baum Immobilien - Gutachten & Immobilien
Kurzexposé drucken (PDF)

"NATURNAH WOHNEN IN OBERRIED" (V21092)

Typ: Mehrfamilienhaus
Lage: Oberried-St.Wilhelm
Grundstück: 818 qm
Wohnfläche-Nutzfläche: 210 qm
Besichtigung: nach Vereinbarung
Preis: reserviert
  Alle Objektangaben beruhen auf Mitteilung des Eigentümers, für deren Richtigkeit kann keine Haftung übernommen werden.


Beschreibung

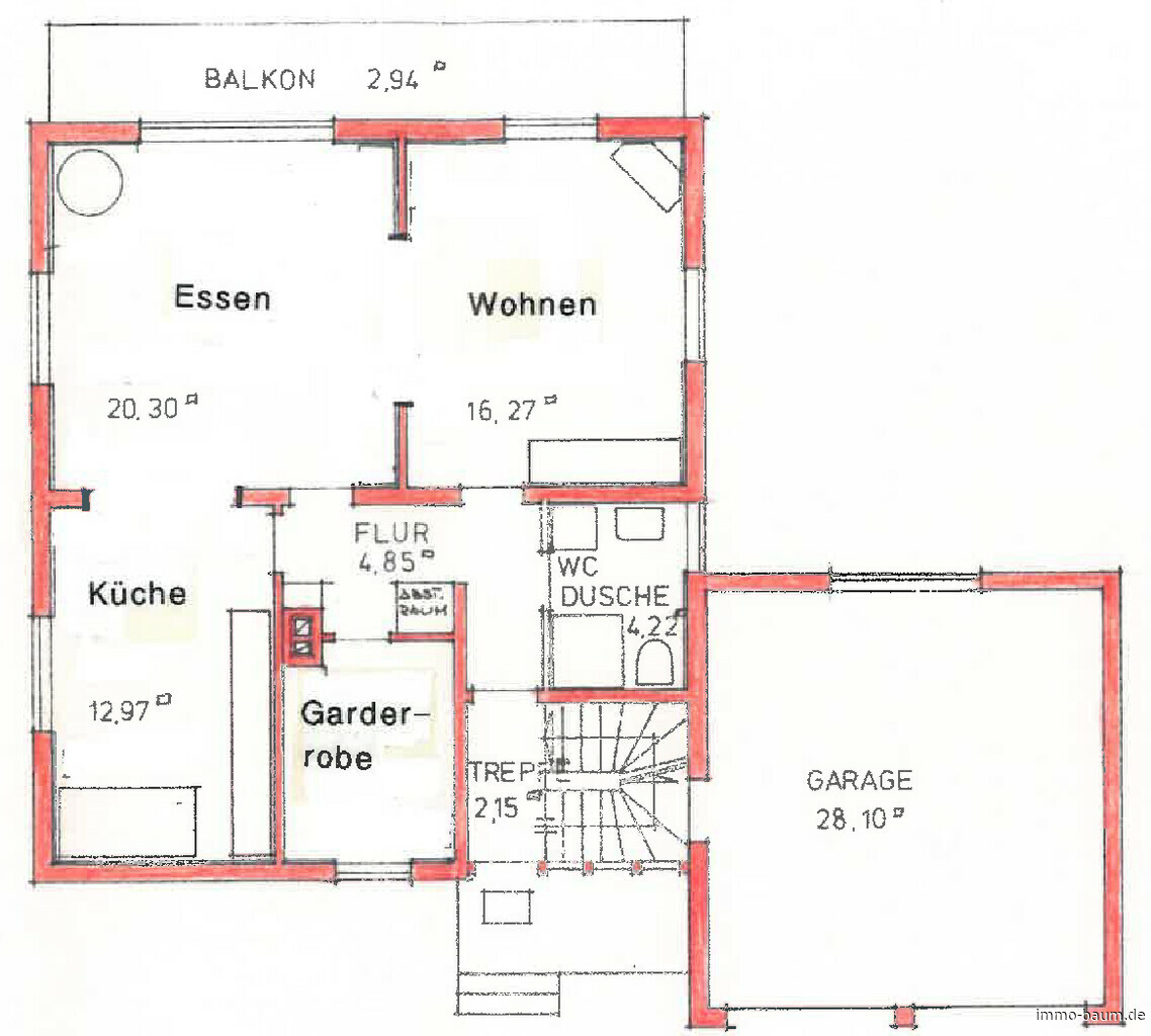
Dieses charmante Haus im malerischen Oberried-St. Wilhelm vereint großzügiges Wohnen mit naturnaher Idylle - ein Ort, der Ruhe, Komfort und Lebensqualität bietet. Errichtet in den Jahren 1974/75 auf einem etwa 818 m² großen Grundstück, beeindruckt das Haus mit einem herrlichen Panoramablick. Im Osten schweift der Blick hinauf zum majestätischen Feldberg, im Westen grüßt der Schauinsland mit seinen sanften Höhenzügen. Die direkte Lage an dem plätschernden St. Wilhelmer Talbach unterstreicht das einzigartige Naturerlebnis. Das Gebäude verteilt sich auf drei Etagen und bietet mit ca. 210 m² Wohnfläche und insgesamt sieben Zimmern reichlich Platz für Familien, Paare oder auch anspruchsvolle Individualisten. Jede Wohnebene wird über das separate Treppenhaus erschlossen, wodurch sich die Möglichkeit eröffnet, einzelne Geschosse vollständig als separate Wohnungen zu gestalten. Dank dieser Flexibilität ist das Objekt sowohl für Eigennutzer als auch für die Nutzung als Mehrgenerationenhaus besonders attraktiv. Das Haus überzeugt durch eine durchdachte Grundrissgestaltung mit großzügigen, lichtdurchfluteten Wohn- und Schlafräumen. Auf allen Ebenen finden sich individuelle Rückzugsorte sowie gemeinschaftliche Wohnbereiche. Direkt neben dem Haus liegt die geräumige Doppelgarage, die nicht nur ausreichend Platz für zwei Fahrzeuge bietet, sondern auch durch zwei davorliegende Außenstellplätze zusätzlichen Parkraum schafft. Im Erdgeschoss befindet sich das einladende Wohnzimmer mit Zugang zum großen Südbalkon mit Blick in den Garten und zur Brugga. Ein holzbefeuerter Schwedenofen sorgt hier für wohlige Wärme und gemütliche Abende. Der hochwertige Echtholzparkettboden verleiht dem Raum eine warme, natürliche Atmosphäre. Die Küche und der Essbereich sind funktional und familienfreundlich gestaltet. Über mehrere Balkone im Haus lassen sich sowohl Sonnenaufgang als auch Sonnenuntergang genießen - eine Rarität, die nur wenige Immobilien bieten. Die oberen Stockwerke beherbergen weitere Schlafzimmer, Arbeits- oder Gästezimmer, jeweils mit Zugang zu den Balkonen und Blick ins Grüne. Die vier Bäder - modernisiert im Jahr 2002 - bieten Komfort auf jeder Etage. Der Außenbereich ist eine wahre Oase. Die große Erdterrasse im Souterrain lädt zum Verweilen, Grillen oder Entspannen ein. Das Grundstück grenzt direkt an die Brugga, was nicht nur einen unvergleichlichen Naturklang mit sich bringt, sondern auch einen besonders hohen Erholungswert. Die schöne Gartenanlage bietet Raum für Spiel, Gartenbau oder einfach nur zum Genießen. Beheizt wird das Haus durch eine Ölzentralheizung, der Schwedenofen im Wohnzimmer bietet eine zusätzliche, unabhängige Wärmequelle für kalte Wintertage. Dieses Haus in Oberried-St. Wilhelm ist mehr als nur eine Immobilie - es ist ein Rückzugsort mit Charakter. Die Lage am St. Wilhelmer Talbach, der Weitblick auf Feldberg und Schauinsland, die großzügige Raumaufteilung sowie die stilvollen Modernisierungen machen dieses Haus zu einer seltenen Gelegenheit in der Region.




Kurzexposé drucken (PDF)


Umgebung: Oberried-St.Wilhelm

In herrlich ruhiger Lage, am Fuße des Feldbergs, aber dennoch nur 12km von der Großstadt Freiburg entfernt, bietet Oberried-St.Wilhelm ländlichen Charme, der nach Belieben mit den Vorzügen der Großstadt verbunden werden kann.

Die unverfälschte Natur und die sicheren, wenig befahrenen Straßen machen die Wohngegend für Familien und Menschen, die Ruhe und Natur suchen, besonders attraktiv. Die nahe Ortschaft Kirchzarten bietet vielfältige Einkaufsmöglichkeiten.



< vorheriges Objektzurück zur Suchenächstes Objekt >


Ansprechpartner in Sachen Immobilien

Frank Baum
Immobilienfachwirt (IHK), Dipl. Sachverständiger (DIA)
Hauptstraße 24
79254 Oberried
Telefon: +49 (0) 7661 -90 50 10
Fax: +49 (0) 7661 - 90 50 10
Frank Baum - Ansprechpartner in Sachen Immobilien