Startseite zum Kontaktformular Telefon zum Menü
Baum Immobilien - Gutachten & Immobilien
Kurzexposé drucken (PDF)

Altbau in Freiburg-Stühlinger (V21078)

Typ: Mehrfamilienhäuser
Lage: Freiburg-Stühlinger
Grundstück: 159 qm
Wohnfläche-Nutzfläche: 224 qm
Besichtigung: nach Vereinbarung
Preis: 1.160.000,00 €
  Alle Objektangaben beruhen auf Mitteilung des Eigentümers, für deren Richtigkeit kann keine Haftung übernommen werden.


Beschreibung

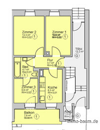
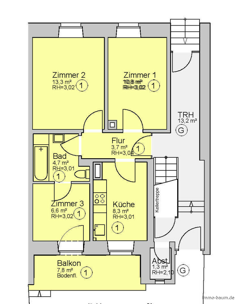
Zum Verkauf steht dieses charmante und gepflegte Vierfamilienhaus aus dem Jahr 1913/1914 im beliebten Stadtteil Stühlinger in Freiburg. Das Haus überzeugt durch seine zentrale Lage, die gepflegte Bausubstanz und den soliden Zustand. Die Immobilie bietet auf insgesamt 224,26 m² Wohnfläche drei 3 Zimmer-Wohnungen und eine Zweizimmer-Wohnung im Dachgeschoss. Jede der vier Wohnungen bietet eine gut durchdachte Raumaufteilung, die Wohnungen haben folgende Größen: Wohnung Nr. 1 im Erdgeschoss ca. 51 m², Wohnung Nr. 2 im 1. Obergeschoss ca. 61 m², Wohnung Nr. 3 im 2. Obergeschoss ca. 62 m² und Wohnung Nr. 4 im Dachgeschoss ca. 49 m². Jede Wohnung hat ein eigenes Kellerabteil sowie zusätzlich einen kleinen Abstellraum im Treppenhaus. Die Wohnungen vom Erdgeschoss bis in 2. Obergeschoss haben eine Deckenhöhe von ca. 3 Metern mit teilweise Stuckleisten an den Decken, die einen charmanten Altbaucharakter ausstrahlen und das einzigartige Flair dieses Objektes unterstreichen. Dies gilt auch für das schöne Treppenhaus mit der Holztreppe und dem Holzgeländer, den alten Wohnungstüren mit Glasausschnitt und den Treppenhausfenstern mit Ornamenten und alten Beschlägen. Auf dem 159 m² großen Grundstück befindet sich im Innenhof (der nur über den Haupteingang des Hauses zugänglich ist), ein Abstellraum für Fahrräder sowie über eine Waschküche mit Platz für die Waschmaschinen der Hausbewohner. Drei Wohnungen (vom EG bis ins 2.OG) haben einen Balkon mit Blick in den Innenhof und in Richtung Innenstadt, die DG-Wohnung hat keinen Balkon. Alle Wohnungen mit Ausnahme der DG-Wohnung haben in 2021 neue Fenster erhalten. Jede Wohnung hat Ihre eigene Gastherme, die sich jeweils in den Küchen der Wohnungen befindet, dass Haus ist in Wohnungseigentum aufgeteilt. Dieses Vierfamilienhaus stellt eine seltene Gelegenheit für Kapitalanleger oder Altbauliebhaber dar, die auf der Suche nach einem wertstabilen Investment in Freiburg sind. Mit der ausgezeichneten Lage bietet das Objekt eine solide Basis für eine langfristige Wertentwicklung. Die Immobilie generiert derzeit eine Jahresnettokaltmiete von 23.796,-- Euro.


Grundrisse



Kurzexposé drucken (PDF)


Umgebung: Freiburg-Stühlinger

Der Stühlinger ist mit seiner lebendigen Atmosphäre, der zentrumsnahen Lage und den angrenzenden Grünvierteln einer der reizvollsten Stadtteile Freiburgs.

Attraktive modernisierte Häuser und die Dreisam als Südgrenze des Stühlinger machen das Leben in dem multikulturellen Stadtteil mit einer Vielzahl an Geschäften, Gastronomien und Bildungs- und Kultureinrichtungen ganz besonders lebenswert.



< vorheriges Objektzurück zur Suchenächstes Objekt >


Ansprechpartner in Sachen Immobilien

Frank Baum
Immobilienfachwirt (IHK), Dipl. Sachverständiger (DIA)
Hauptstraße 24
79254 Oberried
Telefon: +49 (0) 7661 -90 50 10
Fax: +49 (0) 7661 - 90 50 10
Frank Baum - Ansprechpartner in Sachen Immobilien